Search

Leave a Message

Thank you for your message. I will be in touch with you shortly.

Explore Our Properties

Property Description

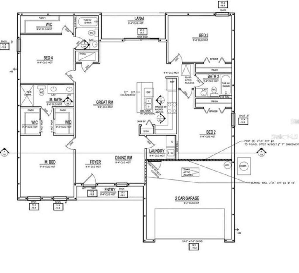
Under Construction. This brand new modern home features 4 bedrooms and 3 full baths with lot of upgrades. One of the
main features is the 2 Suites (One Master Suite with his & hers walk-in closet and One Junior suite with a walk-in closet). You will be amazed by this spacious and gorgeous floor plan. This lovely home offers ceramic tile throughout, open concept family room, dining room and kitchen combination, with high ceilings. Granite countertops in the kitchen and bathrooms. This home comes with stainless steel appliances including microwave, dishwasher, refrigerator, and range. Located close to supermarket and I-75. Do not miss out on this opportunity!! Expected to be completed January/2024. PICTURES ARE FROM MODEL HOME AND RENDERINGS, NOT FROM ACTUAL HOME BEING BUILT. PICTURES FOR ILLUSTRATION PURPOSES ONLY, COLORS AND FINISHES MAY BE DIFFERENT.

Overview

Property Status
Sold
Lot Size
10,000 Sq.Ft.
MLS ID
O6169896
Property Type
Residential
Year Built
2024

Features & Amenities

Total Area
2,351 Sq.Ft.
Stories
1
Garage Spaces
2.0
Water Source
Public
Utilites
Electricity Available, Public, Water Available
Roof
Shingle
Heat Type
Central
Air Conditioning
Central Air
Laundry Room
Inside
Appliances
Dishwasher, Disposal, Electric Water Heater, Microwave, Range, Refrigerator
Other Interior Features
Kitchen/Family Room Combo, Open Floorplan, Primary Bedroom Main Floor, Walk-In Closet(s)
Sewer
Septic Tank
Substructure
Slab
Other Exterior Features
Other
Elementary School
Sunrise Elementary School-M
Middle School
Horizon Academy/Mar Oaks
High School
Dunnellon High School
Sales Price
$314,900
Real Estate Tax
$336/yr
Zoning
R1

Downloads

15629 SW 28TH AVENUE RD

Schedule a Tour

I would love to help you see this beautiful home! As a full-service brokerage, we can help you tour. Please submit an offer and answer questions about the buying process.

Thank you

for your interest in 15629 SW 28TH AVENUE RD, OCALA, FL 34473

15629 SW 28TH AVENUE RD
Navigate
15629 SW 28TH AVENUE RD
explore in 3d

I'm Interested In

15629 SW 28TH AVENUE RD

or
  • CallEdwin Gomez

    License #SL3411947

    (407) 953-0192
  • Featured Properties

    • 5200 MYRTLELEAF CT For Sale

      $610,000

      5200 MYRTLELEAF CT, ST CLOUD, FL 34772

      • 6 Beds
      • 3 Baths
      • 2,875 Sq.Ft.
    • 5225 CHICKADEE ST Pending

      $425,000

      5225 CHICKADEE ST, ST CLOUD, FL 34771

      • 3 Beds
      • 2 Baths
      • 1,341 Sq.Ft.
    • 4991 ALITA TER For Sale

      $350,000

      4991 ALITA TER, ST CLOUD, FL 34769

      • 4 Beds
      • 3 Baths
      • 2,122 Sq.Ft.
    • 168 CLUB VILLAS LN For Sale

      $325,000

      168 CLUB VILLAS LN, KISSIMMEE, FL 34744

      • 2 Beds
      • 2 Baths
      • 1,417 Sq.Ft.
    • 3897 SW 169TH LANE RD For Sale

      $248,000

      3897 SW 169TH LANE RD, OCALA, FL 34473

      • 3 Beds
      • 2 Baths
      • 1,115 Sq.Ft.
    • 2709 LUCAS LAKES LN For Lease

      $2,200/mo

      2709 LUCAS LAKES LN, KISSIMMEE, FL 34744

      • 4 Beds
      • 2 Baths
      • 1,688 Sq.Ft.
    View All

    Follow Us On Instagram